We use cookies and other technologies for functionality, security, and to provide you with a personalized experience on our online services. By continuing to use our online services, you agree to our Privacy Policy and Terms of Use. For information on how to adjust your privacy settings, visit our Cookie Policy.
Dismiss
Home QC Lachute Argenteuil
379-383 Rue Lafleur #D-E
Directions Print
379-383 Rue Lafleur #D-E + GST + QST $15.50/Yearly/square feet
+ GST + QST $16/Yearly/square feet
Hide
Favourite

379-383 Rue Lafleur
#D-E
Lachute, Quebec J8H1R2

MLS® Number: 23144962

Listing Description

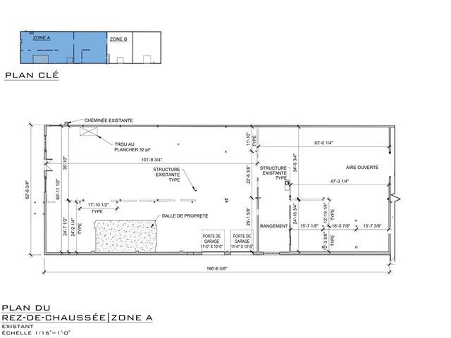
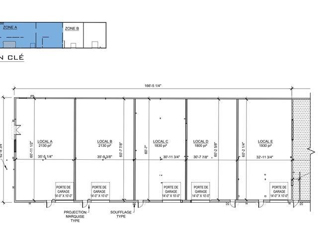
Commercial and industrial-zoned space available in the heart of Lachute! View the project plans for a preview of the renovated space. These spaces offer flexible sizes, ranging from 1,600 to over 2,900 square feet with a ceiling height that varies between 19 and 22 feet and the ability to combine them to create a space of up to 12,800 square feet. GST/QST must be added to the asking price (51527071)

Property Summary

Property Type
Retail
Building Type
Retail
Storeys
1
Built in
1950
Time on REALTOR.ca
206 days

Building

Building Features
Style
Semi-detached
Total Units
1
Utilities
Utility Sewer
Municipal sewage system
Water
Municipal water

Land

Other Property Information
Zoning Type
Mixed
Farm Features
Farm Type
Other
Are you interested in touring this listing?
Request a showing

Samuel Paquette