We use cookies and other technologies for functionality, security, and to provide you with a personalized experience on our online services. By continuing to use our online services, you agree to our Privacy Policy and Terms of Use. For information on how to adjust your privacy settings, visit our Cookie Policy.
Dismiss
Home ON Middlesex County Lucan Biddulph
164 MAIN STREET
Directions Print
More Photos + 2
164 MAIN STREET $35/square feet
$35/square feet
Hide
Favourite

164 MAIN STREET
Lucan Biddulph (Lucan), Ontario N0M2J0

MLS® Number: X12162056

Listing Description

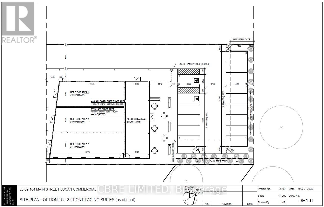
New retail development with excellent exposure along Main Street (Highway 4). Units ranging in size from 1,120 SF to 4,768 SF can be demised to suit Tenants needs. Zoning allows for clinic, convenience store, financial institution, office, retail, personal service, restaurant and more. possession is approximately 12 to 18 months from signing of the Lease. Additional rent is estimated at $11.50 per SF per year. Utilities are separately metered and at the Tenants expense. (40504117)

Location Description

Cross Streets: William Street. ** Directions: Main Street / William Street.

Property Summary

Property Type
Retail
Community Name
Lucan
Land Size
0.403 ac
Annual Property Taxes
$11.50
Time on REALTOR.ca
213 days

Building

Heating & Cooling
Cooling
Fully air conditioned
Heating Type
Forced air (Natural gas)
Utilities
Water
Municipal water

Measurements

Square Footage
1120 sqft

Land

Lot Features
Frontage
100 ft ,6 in
Other Property Information
Zoning Description
C1
Lease Type
Net
Are you interested in touring this listing?
Request a showing

RICK SPENCER