We use cookies and other technologies for functionality, security, and to provide you with a personalized experience on our online services. By continuing to use our online services, you agree to our Privacy Policy and Terms of Use. For information on how to adjust your privacy settings, visit our Cookie Policy.
Dismiss
Home SK Division No. 11 Last Mountain Valley No. 250
52 Sunset Acres LANE
Directions Print
52 Sunset Acres LANE $629,800
$629,800
Hide
Favourite

52 Sunset Acres LANE
Last Mountain Valley RM No. 250, Saskatchewan S0G0Z0

MLS® Number: SK004481
3
Bedrooms
2
Bathrooms
1509
Square Feet

Listing Description

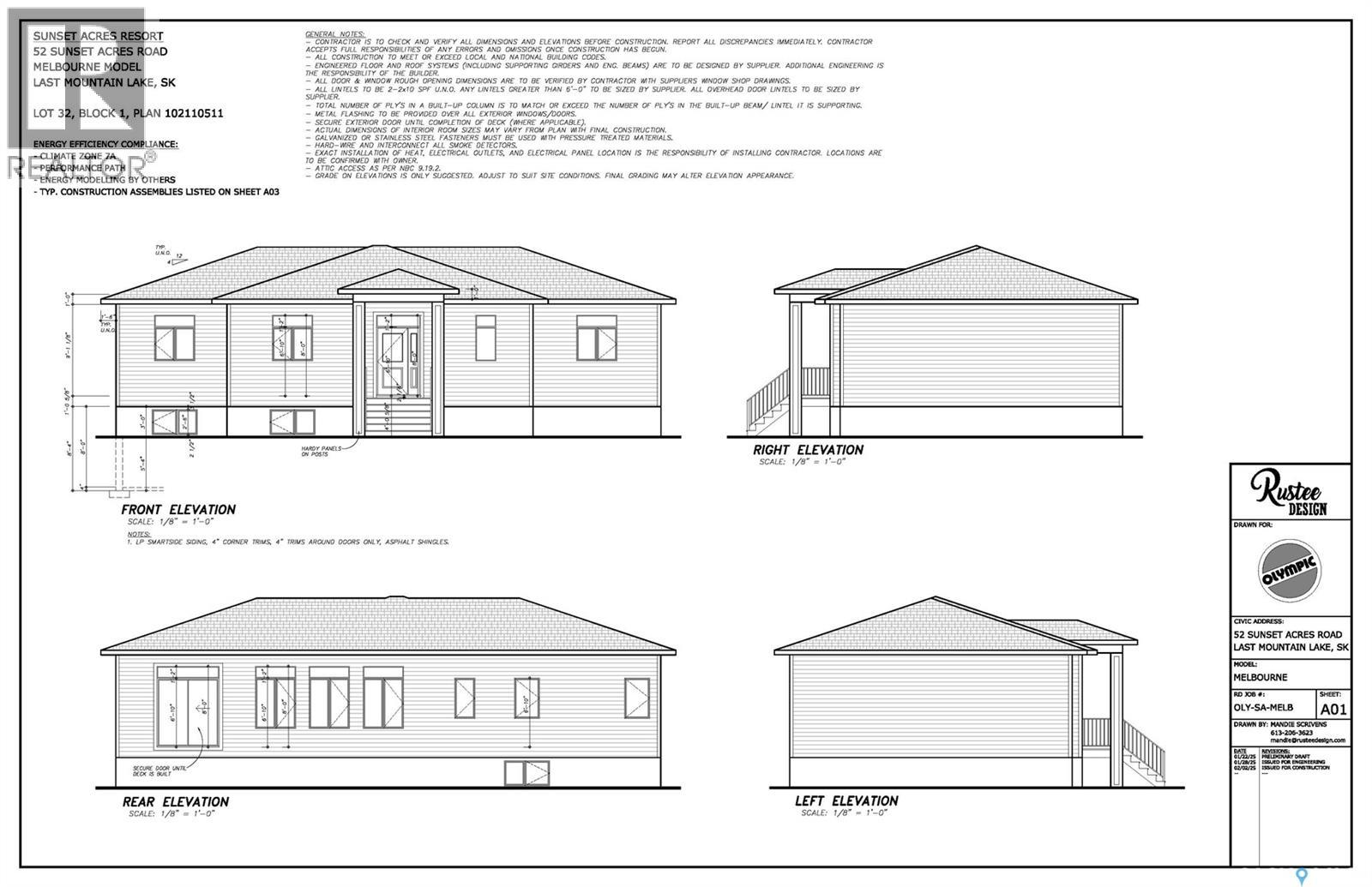
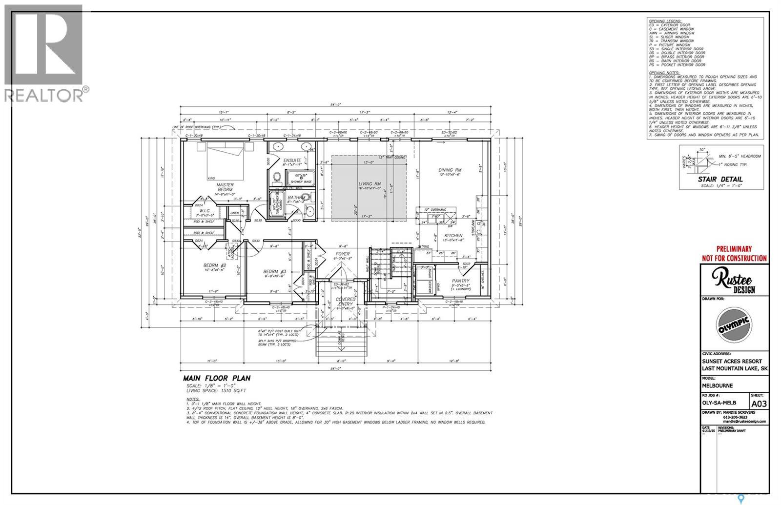
Offered at $629,800 this four-season waterfront bungalow is now ready for possession. You still have time to enjoy some summer at the lake this year! The price is plus GST and PST. It is possible the house will qualify for both a GST and PST reduction. Located at Sunset Acres Resort on the east shore of Last Mountain Lake, this development features a marina, 120’ concrete boat launch, a tree planting program, and a large beach area. The 1509 sq. ft. main floor features 3 bedrooms, 2 bathrooms, and a huge open living space. The kitchen provides plenty of storage space with a combination pantry and laundry area. The lakefront side of the home is designed for a deck off of the living room. Large windows provide sweeping views of the lake. This waterfront home will sit on a full concrete basement, with rough-in plumbing and ready for your personal development touch. There is plenty of space for additional bedrooms, a games room, office space, movie room, or whatever your lifestyle requires. A hi-efficient forced air natural gas furnace and water heater complete this level. With a large lot, 75’ x 312’ in size, there is plenty of room for a future garage. https://sunsetacres.com/ Contact your REALTOR® today for more information. (28258124)

Property Summary

Property Type
Single Family
Building Type
House
Storeys
1
Square Footage
1509 sqft
Neighbourhood Name
Last Mountain Lake
Subdivision Name
Sunset Acres Resort
Title
Freehold
Land Size
0.54 ac
Built in
2025
Annual Property Taxes
$1,591
Parking Type
None, Gravel, Parking Space(s) (6)
Time on REALTOR.ca
225 days

Building

Bathrooms
Total
2
Interior Features
Basement Type
Full (Unfinished)
Building Features
Features
Rectangular, Recreational
Architecture Style
Bungalow
Heating & Cooling
Heating Type
Forced air, (Natural gas)
Parking
Parking Type
None, Gravel, Parking Space(s) (6)

Measurements

Square Footage
1509 sqft

Rooms

MetricImperial
Main level
Foyer
Kitchen
Dining room
Living room
Laundry room
4pc Bathroom
Primary Bedroom
4pc Ensuite bath
Bedroom
Bedroom

Land

Lot Features
Frontage
75 ft
Waterfront Features
Waterfront
Waterfront
Waterfront Name
Last Mountain Lake
Are you interested in touring this listing?
Request a showing

Similar Listings

Carmen Bechard