We use cookies and other technologies for functionality, security, and to provide you with a personalized experience on our online services. By continuing to use our online services, you agree to our Privacy Policy and Terms of Use. For information on how to adjust your privacy settings, visit our Cookie Policy.
Dismiss
Home BC Greater Kelowna Central Okanagan Kelowna North Mission - Crawford
569 Radant Road
Directions Print
569 Radant Road $1,790,000
Price Change on 11/26/2025
$1,790,000
-$110,000
$1,900,000
Hide
Favourite

569 Radant Road
Kelowna, British Columbia V1W1A1

MLS® Number: 10345489

Listing Description

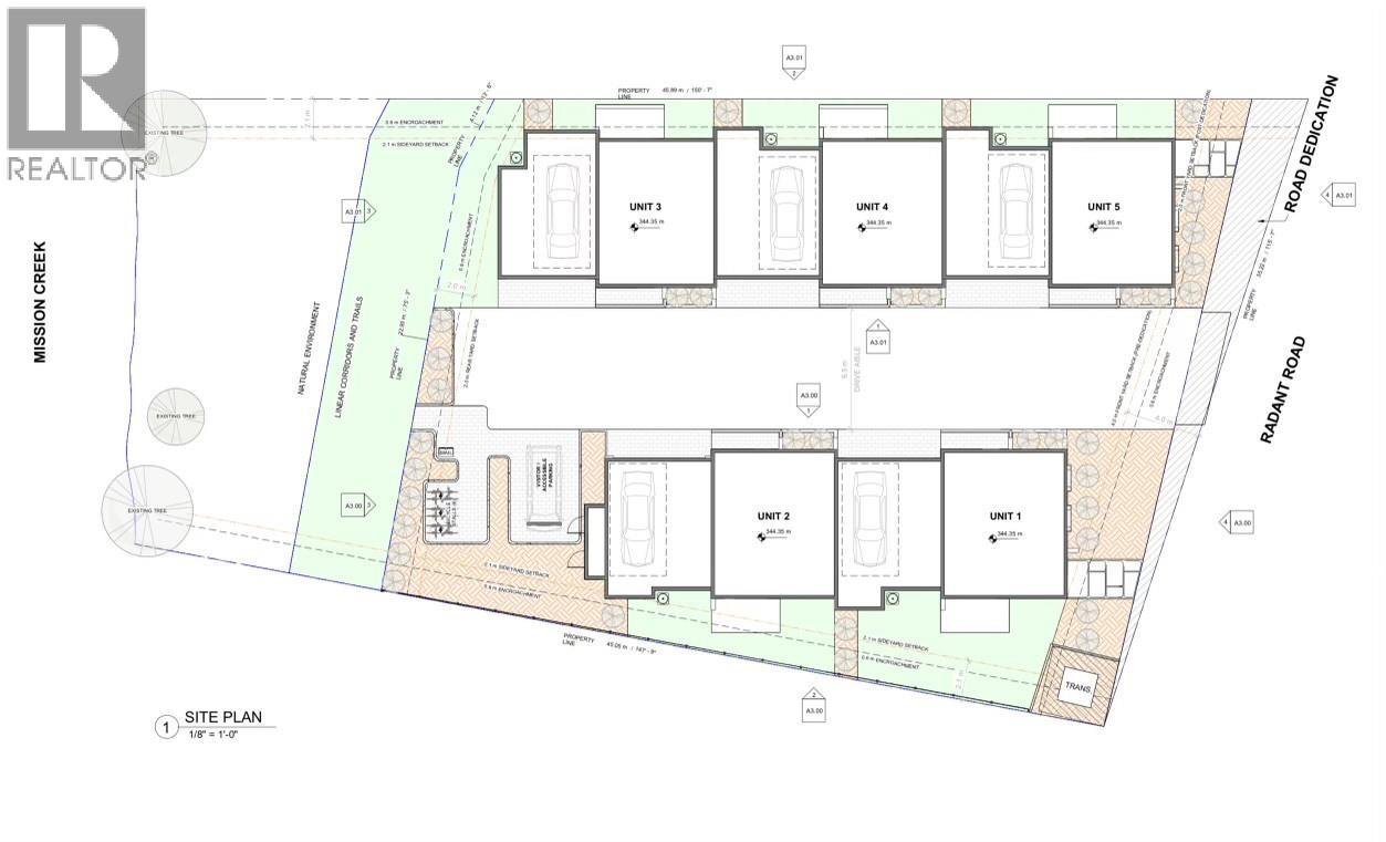
Exceptional Development Opportunity in the Heart of Lower Mission 569 Radant Road, Kelowna | Prime MF1 Zoning! Unlock the full potential of this rare and highly sought-after property in Kelowna’s prestigious Lower Mission. Located at 569 Radant Road, this large, level lot offers a prime opportunity for multi-family development in one of the city’s most vibrant and rapidly evolving neighbourhoods. Preliminary design plans are already in place for a five-unit townhouse project, each thoughtfully designed with 3 bedrooms, 2 bathrooms, a private garage, and expansive rooftop patios—perfectly tailored for today’s discerning urban buyers. For developers seeking flexibility, this property offers even more: the lot is large enough to be subdivided into two MF1-zoned parcels, allowing for a variety of smaller-scale multifamily configurations. Whether you proceed with the existing plans or reimagine the site to suit your own vision, the development possibilities are exceptional. Backing onto Mission Creek and just steps from the newly revitalized Truswell Beach access, the location is second to none. Residents will enjoy walkable access to Okanagan Lake, the H2O Adventure + Fitness Centre, vibrant Pandosy Village, boutique shopping, popular restaurants, breweries, and scenic walking trails. 569 Radant Road represents a rare blend of location, zoning, and scale—making it one of the most compelling development opportunities currently available in Kelowna. (38590965)

Property Summary

Property Type
Vacant Land
Building Type
Other
Neighbourhood Name
Lower Mission
Title
Freehold
Land Size
0.44 ac|under 1 acre
Annual Property Taxes
$4,801.69
Time on REALTOR.ca
225 days

Price and Sale History

Date Status Price
May 27, 2021 Sale Closed $1,200,000
Mar 25, 2007 Sale Closed $776,000
Apr 30, 2001 Sale Closed $250,000

Building

Building Features
Features
Private setting
Utilities
Utility Type
Cable (Available)
Utility Sewer
Municipal sewage system
Water
Municipal water
Neighbourhood Features
Amenities Nearby
Golf Nearby, Park, Schools, Shopping

Land

Lot Features
Frontage
112 ft
Road Type
Paved road
Other Property Information
Access
Easy access
Waterfront Features
Surface Water
Creeks, Creek or Stream
Are you interested in touring this listing?
Request a showing

Similar Listings

Jesse East