We use cookies and other technologies for functionality, security, and to provide you with a personalized experience on our online services. By continuing to use our online services, you agree to our Privacy Policy and Terms of Use. For information on how to adjust your privacy settings, visit our Cookie Policy.
Dismiss
Home AB Grande Prairie Division No. 19 Avondale
201, 10404 100 Street
Directions Print
201, 10404 100 Street $8/Yearly/square feet
$8/Yearly/square feet
Hide
Favourite

201, 10404 100 Street
Grande Prairie, Alberta t8v2m2

MLS® Number: A2214559

Listing Description

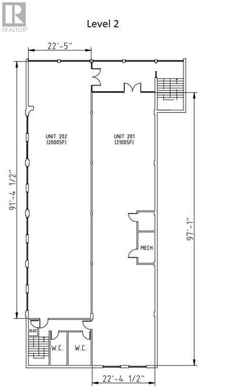
Fabulous location for a Second Floor Retail! This 2100 SQFT mixed use commercial space has abundance of windows for a bright and cheery show room! Centrally located with lots of parking in front and alongside this building for customers. Lease is NNN. Book your showing today. Immediate Possession Base $1,400 + Comm Costs $1,197 = $2,597 + GST (Includes Utilities!!!) Grab this great space today! (30423812)

Property Summary

Property Type
Retail
Building Type
Retail
Community Name
VLA Montrose
Subdivision Name
VLA Montrose
Land Size
Unknown
Built in
1965
Time on REALTOR.ca
241 days

Measurements

Square Footage
2100 sqft
Total Finished Area
2100 sqft
Exterior Building Size
2100 sqft
Data provided by: Pillar 9™
Are you interested in touring this listing?
Request a showing

Matt Yesmaniski