We use cookies and other technologies for functionality, security, and to provide you with a personalized experience on our online services. By continuing to use our online services, you agree to our Privacy Policy and Terms of Use. For information on how to adjust your privacy settings, visit our Cookie Policy.
Dismiss
Home ON Huron County Bluewater
60 DEER RIDGE LANE W
Directions Print
60 DEER RIDGE LANE W $995,000
$995,000
Hide
Favourite

60 DEER RIDGE LANE W
Bluewater (Bayfield), Ontario N0M1G0

MLS® Number: X12066808
2 + 1
Bedrooms
3
Bathrooms
1500 - 2000
Square Feet

Listing Description

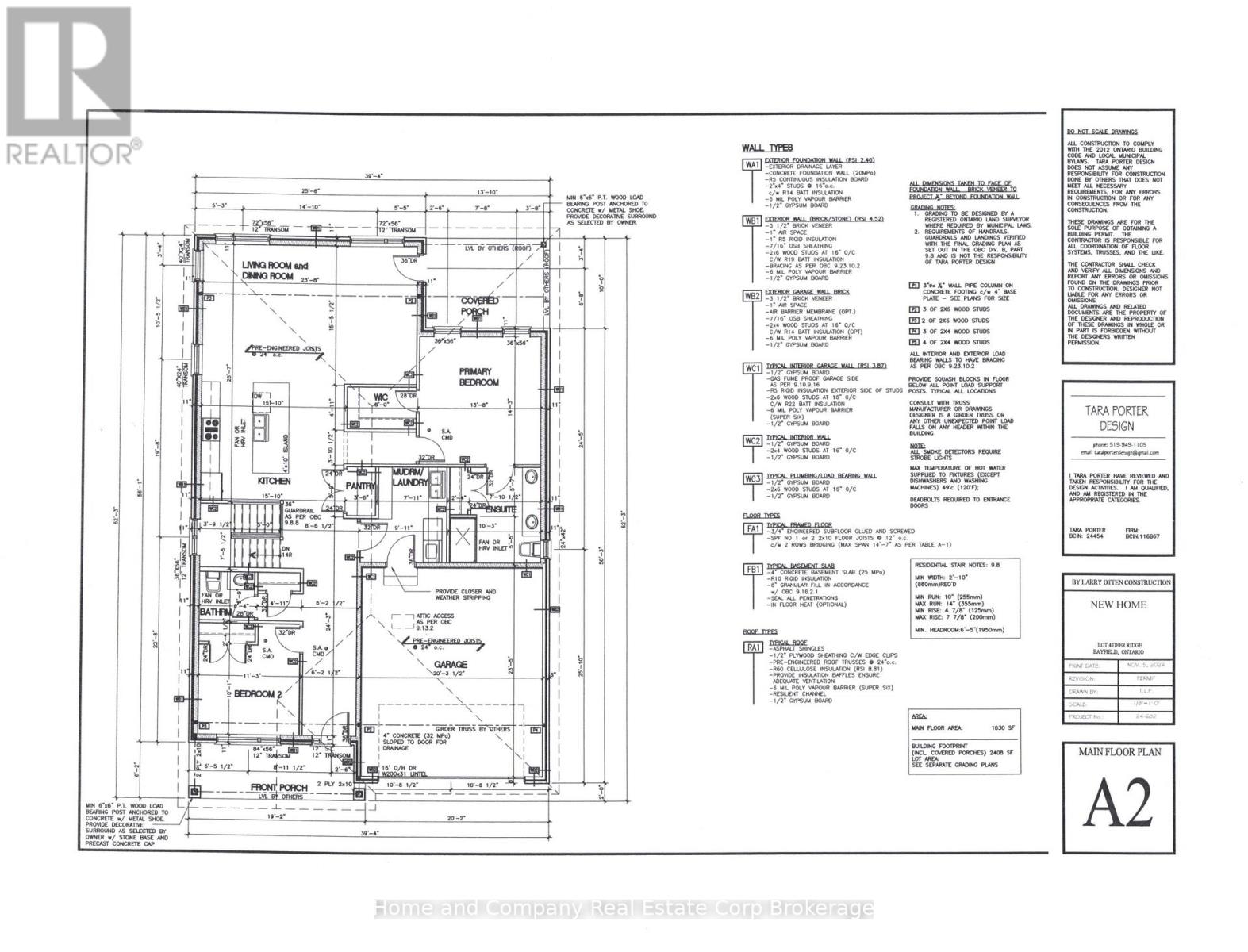
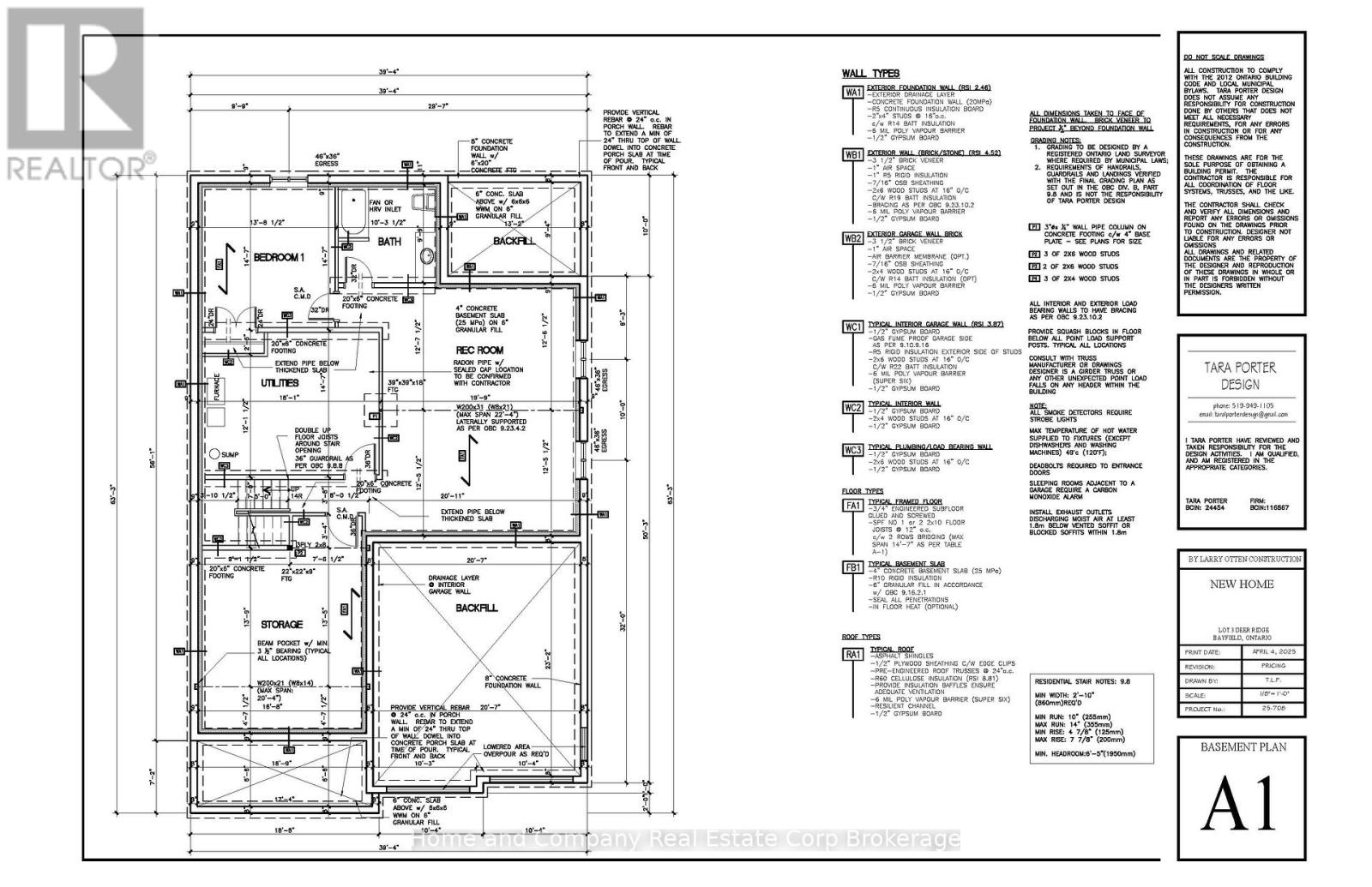
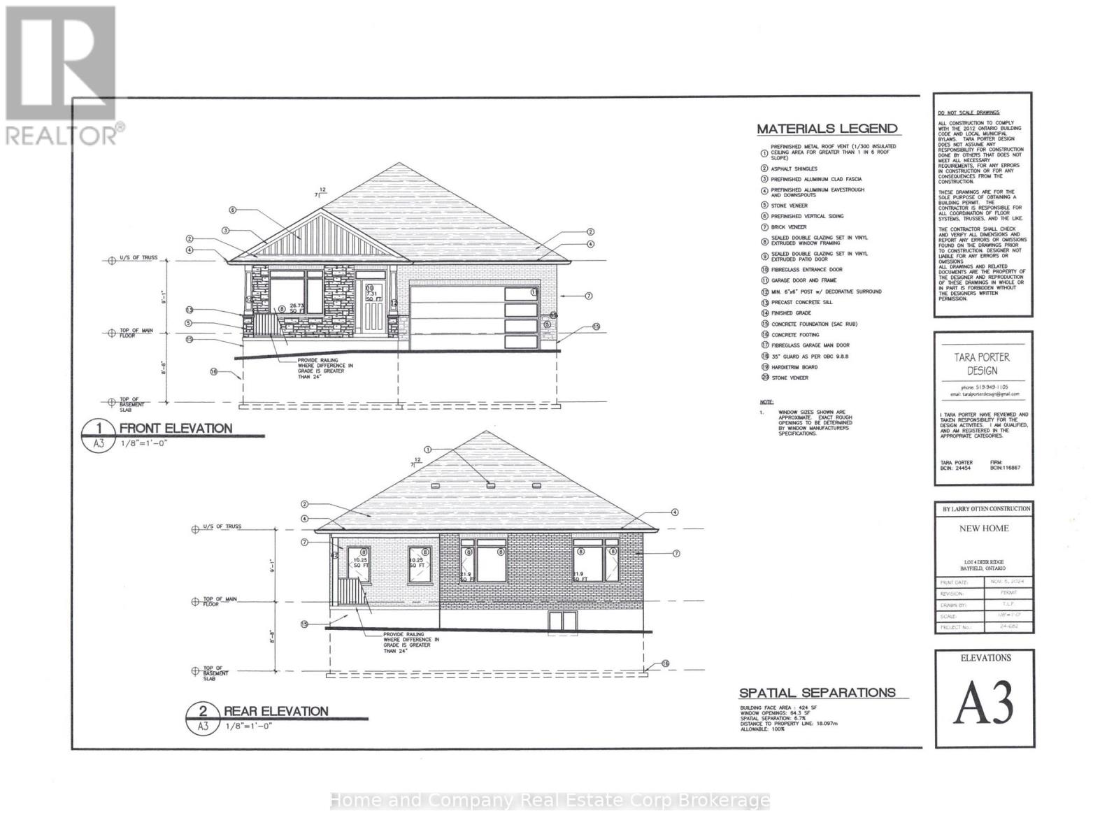
The Chase at Deer Ridge is a picturesque residential community, currently nestled amongst mature vineyards and the surrounding wooded area in the south east portion of Bayfield, a quintessential Ontario Village at the shores of Lake Huron. There will be a total of 23 dwellings, which includes 13 beautiful Bungalow Townhomes (currently under construction), and 9 detached Bungalow homes (Lot 9 Under construction) to be built by Larry Otten Contracting . The detached Bungalow on Lot 3 will be approx. 1,630 sq. ft. on the main level to include a primary bedroom with 5pc ensuite, spacious guest bedroom, open concept living/dining/kitchen area, which includes a spacious kitchen island for entertaining, walk-out to lovely covered porch, plus a 4pc bathroom, laundry and double car garage. Standard upgrades are included: Paved double drive, sodded lot, central air, 2 stage gas furnace, HVAC system, belt driven garage door opener, water softener, and water heater. The finished basement, will include a 4pc Bath, Rec-room and Bedroom with Closet, . Please see the attached supplemental documents of House Plans and Lot Plan. (40197881)

Location Description

Cross Streets: HYW 21 & Deer Ridge Lane. ** Directions: W.

Property Summary

Property Type
Single Family
Building Type
House
Storeys
1
Square Footage
1500 - 2000 sqft
Community Name
Bayfield
Title
Freehold
Land Size
17.5 x 36.3 M
Annual Property Taxes
$0
Parking Type
Attached Garage, Garage
Time on REALTOR.ca
259 days

Building

Bedrooms
Above Grade
2
Below Grade
1
Bathrooms
Total
3
Interior Features
Appliances Included
Water Heater, Garage door opener remote(s), Range, Water softener, Water meter, Garage door opener, Hood Fan
Basement Type
Partially finished
Building Features
Features
Carpet Free, Guest Suite
Foundation Type
Poured Concrete
Style
Detached
Architecture Style
Bungalow
Construction Status
Insulation upgraded
Heating & Cooling
Cooling
Central air conditioning, Air exchanger
Heating Type
Forced air (Natural gas)
Utilities
Utility Sewer
Septic System
Water
Municipal water
Exterior Features
Exterior Finish
Brick, Stone
Parking
Parking Type
Attached Garage, Garage
Total Parking Spaces
6

Measurements

Square Footage
1500 - 2000 sqft

Rooms

MetricImperial
Main level
Primary Bedroom
Bathroom
Bedroom 2
Bathroom
Kitchen
Living room
Laundry room
Pantry
Basement
Recreational, Games room
Utility room
Bedroom
Bathroom

Land

Lot Features
Frontage
17.5 m
Land Depth
36.33 m
Other Property Information
Zoning Description
R1
Waterfront Features
Waterfront Name
Lake Huron
Are you interested in touring this listing?
Request a showing

Similar Listings

BRAD DOUGLAS