We use cookies and other technologies for functionality, security, and to provide you with a personalized experience on our online services. By continuing to use our online services, you agree to our Privacy Policy and Terms of Use. For information on how to adjust your privacy settings, visit our Cookie Policy.
Dismiss
Home BC Columbia-Shuswap Columbia-Shuswap E
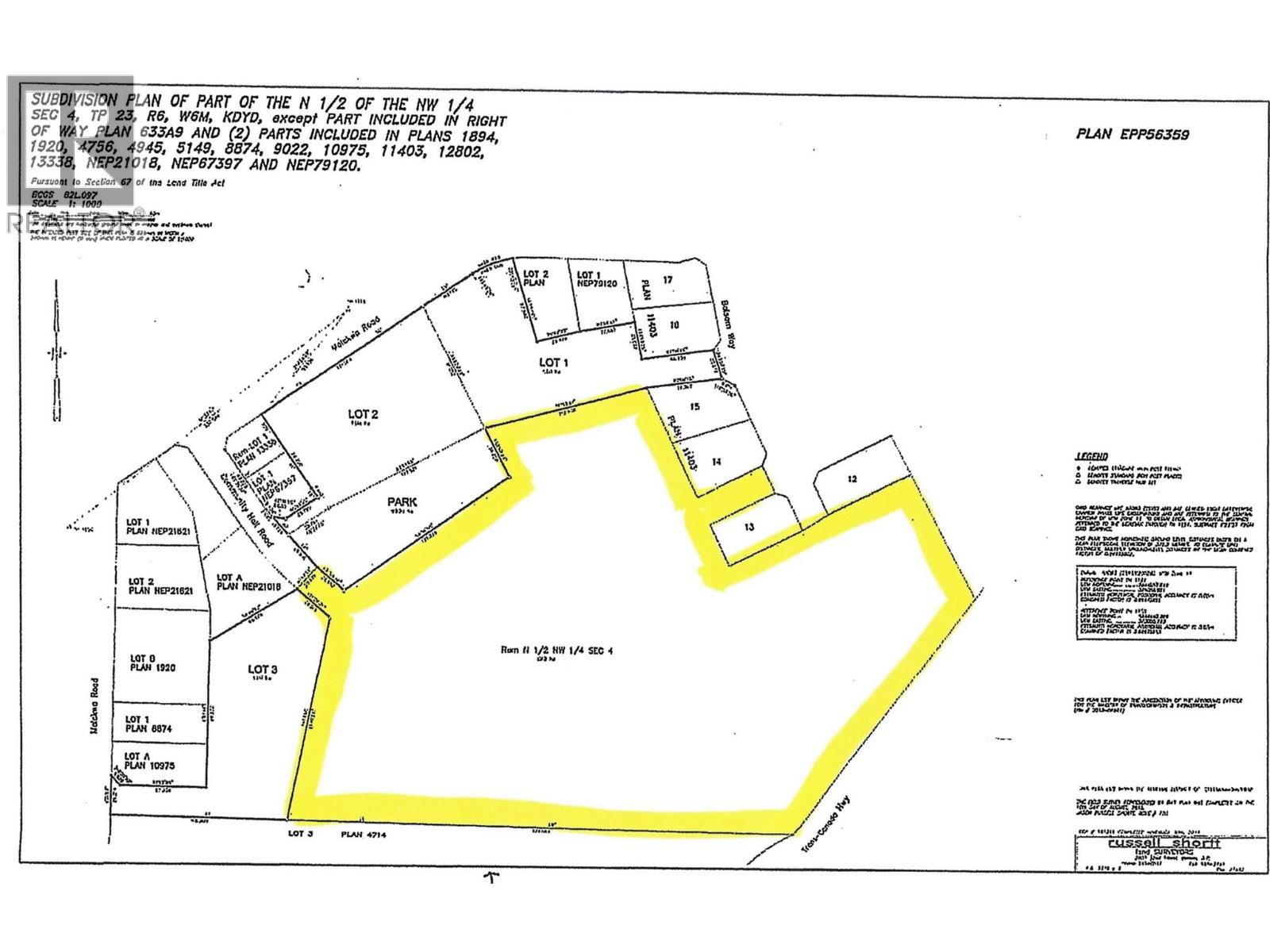
4103 Balsam Way
Directions Print
4103 Balsam Way $885,000
$885,000
Hide
Favourite

4103 Balsam Way
Malakwa, British Columbia V0E2J0

MLS® Number: 10341433

Listing Description

INCREDIBLE OPPORTUNITY! Rare Large, Flat Acreage in Malakwa, BC This exceptional property, located in the charming town of Malakwa is a unique find. Unlike many parcels, it is situated outside the Agricultural Land Reserve (ALR), granting it immense versatility. The property features six newer drilled wells strategically placed across the acreage, offering access to some of the purest water in this area. This makes it ideal for a range of purposes, whether you’re a truck driver needing ample space for your vehicles and equipment or an investor looking to create a potential RV park. Its prime location along the Trans-Canada Highway provides significant appeal for tourists exploring the stunning Shuswap region. With three separate driveways and engineered roads within the acreage, accessibility is a breeze. The convenience of being just 30 minutes from Revelstoke and only 10 minutes from Sicamous adds to its allure. Additionally, this property is a haven for snowmobile enthusiasts, with heavy winter snowfall and numerous trails leading up the nearby mountains. Whether you’re seeking a recreational retreat or an exceptional investment opportunity, this acreage holds remarkable promise. Don’t miss your chance to make it yours! (38444345)

Property Summary

Property Type
Vacant Land
Building Type
Other
Neighbourhood Name
Sicamous
Title
Freehold
Land Size
24.35 ac|10 - 50 acres
Annual Property Taxes
$2,868.34
Time on REALTOR.ca
332 days

Price and Sale History

Date Status Price
Jul 14, 2006 Sale Closed $400,000

Building

Building Features
Features
Level lot, Private setting, Irregular lot size
Utilities
Utility Type
Cable (Available), Electricity (Available), Natural Gas (Not Available), Telephone (Available), Water (Available)
Water
Well
Neighbourhood Features
Community Features
Family Oriented
Amenities Nearby
Park, Recreation, Schools, Shopping, Ski area

Land

Lot Features
Landscape Features
Level
Road Type
Paved road
View
Mountain view
Other Property Information
Access
Easy access, Highway access
Are you interested in touring this listing?
Request a showing

Similar Listings

Kellie Pittman