We use cookies and other technologies for functionality, security, and to provide you with a personalized experience on our online services. By continuing to use our online services, you agree to our Privacy Policy and Terms of Use. For information on how to adjust your privacy settings, visit our Cookie Policy.
Dismiss
Home ON Ottawa - Gatineau Ottawa Greely
1394 GREELY LANE E
Directions Print
More Photos + 2
1394 GREELY LANE E $17/square feet
$17/square feet
Hide
Favourite

1394 GREELY LANE E
Ottawa, Ontario K4P1A1

MLS® Number: X11961656

Listing Description

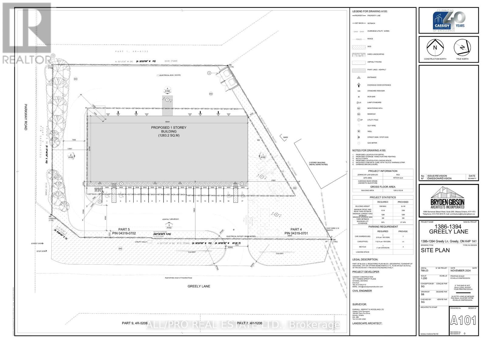
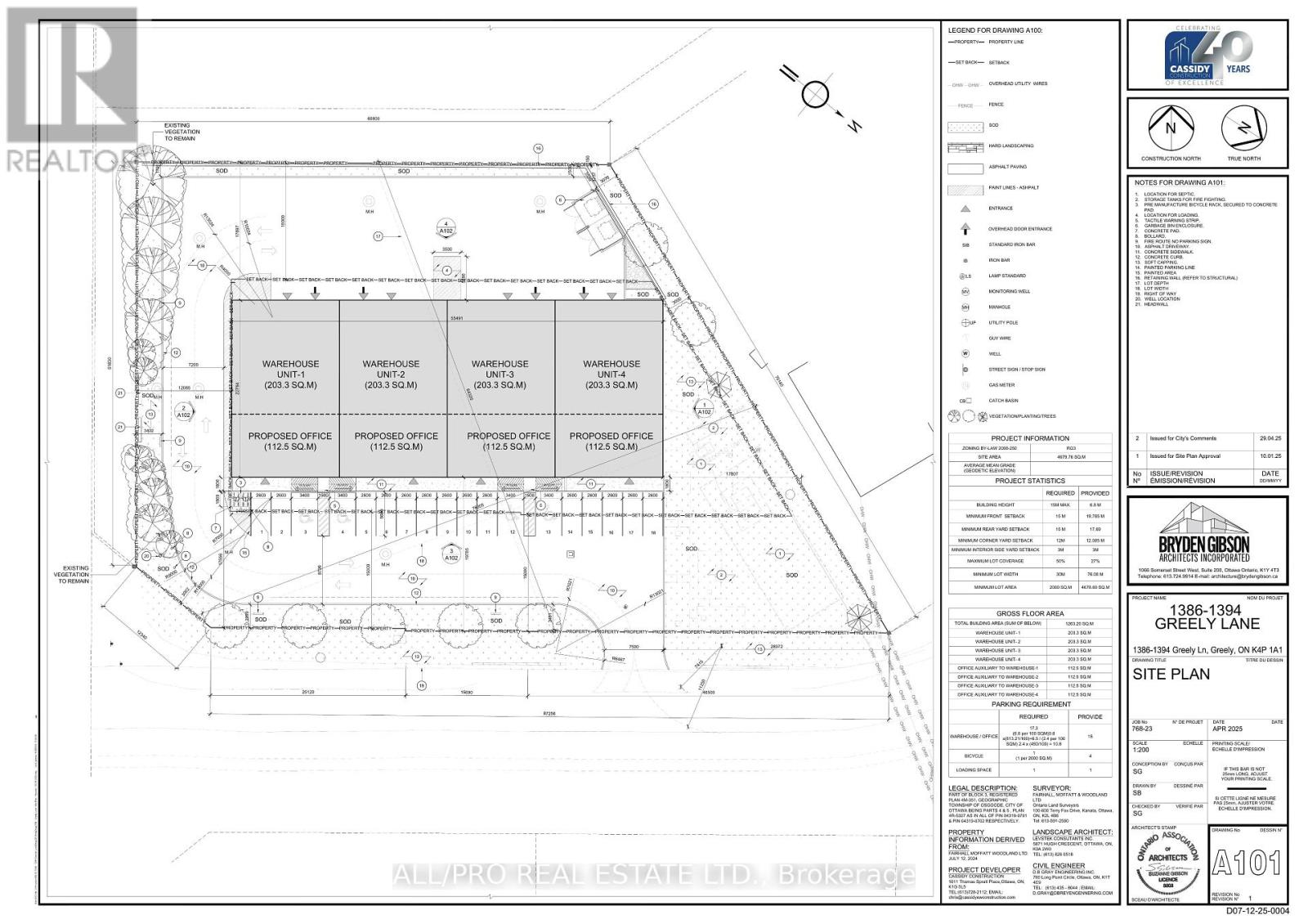
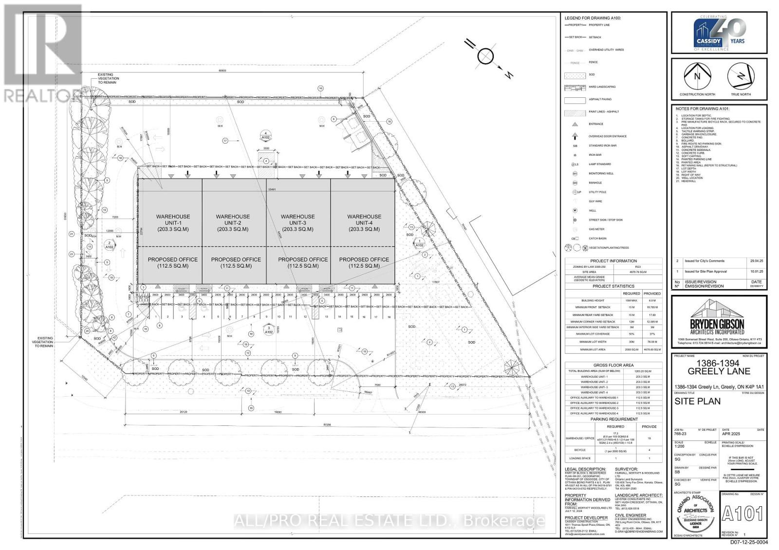
*FOR LEASE - 3500 SQ FT OFFICE/WAREHOUSE SPACE TO BE BUILT X 4 UNITS (14,000+ SQ FT TOTAL). AVAILABLE LATE SPRING 2026* Located in a prime area at Greely Business Park, this brand-new industrial/commercial space will be available for late this year. This flexible and divisible space is ideal for a variety of businesses looking for a modern and highly functional workspace. The building features a street-level bay with 10 x 14 overhead doors for easy access, A 5-ton rooftop unit ensures optimal climate control year-round, 600v Phase 3 Power, and dedicated parking spots. Great opportunity to get into this area in a brand new building! Call today!! (39851532)

Location Description

PARKWAY

Property Summary

Property Type
Industrial
Building Type
Warehouse
Community Name
1601 - Greely
Annual Property Taxes
$0
Time on REALTOR.ca
316 days

Building

Heating & Cooling
Cooling
Fully air conditioned
Heating Type
Forced air (Natural gas)
Business
Business Type
Industrial (Warehouse)

Measurements

Square Footage
3500 sqft
Exterior Building Size
3500 sqft

Land

Other Property Information
Zoning Description
RG Rural General Industrial Zone
Data provided by: Ottawa Real Estate Board
Are you interested in touring this listing?
Request a showing

Chris Hilliard