We use cookies and other technologies for functionality, security, and to provide you with a personalized experience on our online services. By continuing to use our online services, you agree to our Privacy Policy and Terms of Use. For information on how to adjust your privacy settings, visit our Cookie Policy.
Dismiss
Home QC Greater Trois-Rivières Bécancour
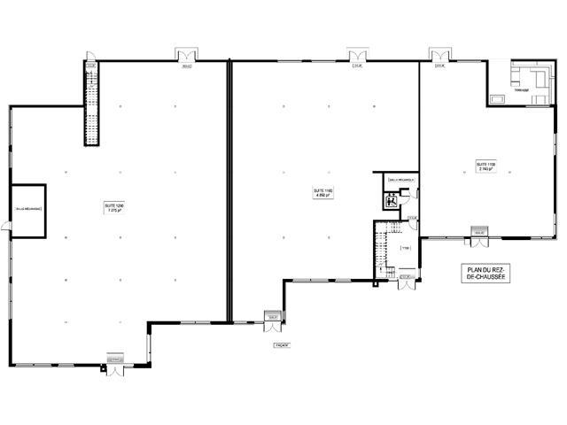
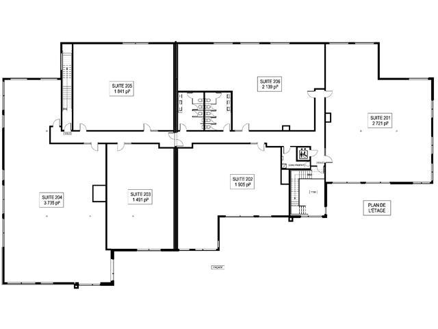
1130 Boul. de Port-Royal #202
Directions Print
1130 Boul. de Port-Royal #202 + GST + QST $16.20/Yearly/square feet
+ GST + QST $16/Yearly/square feet
Hide
Favourite

1130 Boul. de Port-Royal
#202
Bécancour, Quebec G9H0N7

MLS® Number: 19844926

Listing Description

***OPPORTUNITÉ*** Dans un quartier en pleine expansion, ne manquez pas cette opportunité! Immeuble en construction de qualité, alliant la beauté et la modernité. De nombreux locaux de différentes tailles, un ascenseur, la climatisation, tout y est! Près des axes routiers la localisation est un atout majeur. Destiné à accueillir plusieurs professionnels de la santé, cet endroit est incontournable. Le développement économique de Bécancour s'annonce prometteur pour l'avenir (filière batterie, Ford, GM, etc.).Ne ratez pas cette occasion! GST/QST must be added to the asking price (47684713)

Property Summary

Property Type
Retail
Building Type
Retail
Neighbourhood Name
Saint-Grégoire
Parking Type
Other
Time on REALTOR.ca
331 days

Building

Building Features
Features
Elevator, Paved driveway
Foundation Type
Poured Concrete
Style
Detached
Fire Protection
Fire alarm system
Total Units
1
Heating & Cooling
Heating Type
(Electric)
Utilities
Utility Sewer
Municipal sewage system
Water
Municipal water
Neighbourhood Features
Amenities Nearby
Highway, Public Transit
Parking
Parking Type
Other
Total Parking Spaces
40

Land

Farm Features
Farm Type
Other
Are you interested in touring this listing?
Request a showing

Jean-Michel Laliberté