We use cookies and other technologies for functionality, security, and to provide you with a personalized experience on our online services. By continuing to use our online services, you agree to our Privacy Policy and Terms of Use. For information on how to adjust your privacy settings, visit our Cookie Policy.
Dismiss
Home ON Ottawa - Gatineau Ottawa Wateridge Village
705 MIKINAK ROAD
Directions Print
705 MIKINAK ROAD $35/square feet
$35/square feet
Hide
Favourite

705 MIKINAK ROAD
Ottawa, Ontario K1K5B7

MLS® Number: X11823803

Listing Description

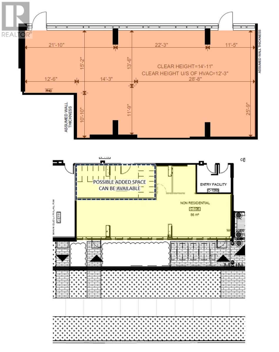
Ground-floor retail units available for lease in the vibrant Mikinak Community, a newly constructed development with 271 residential units. Situated in Gloucester's Wateridge Village, a 310-acre master-planned community featuring 1,700 residential units. Ideal for retail, office use and professional services. (39525907)

Location Description

Mikinak Rd & Hemlock Rd

Property Summary

Property Type
Retail
Community Name
3104 - CFB Rockcliffe and Area
Land Size
92.1 x 55.8 M
Annual Property Taxes
$19.02
Time on REALTOR.ca
383 days

Building

Heating & Cooling
Cooling
Fully air conditioned
Heating Type
Forced air (Natural gas)
Utilities
Water
Municipal water

Measurements

Square Footage
1468 sqft

Land

Lot Features
Frontage
92.1 m
Land Depth
55.8 m
Other Property Information
Zoning Description
GM31 H(30)
Lease Type
Net
Are you interested in touring this listing?
Request a showing

CANDICE FRY