We use cookies and other technologies for functionality, security, and to provide you with a personalized experience on our online services. By continuing to use our online services, you agree to our Privacy Policy and Terms of Use. For information on how to adjust your privacy settings, visit our Cookie Policy.
Dismiss
Home MB Division No. 3 Winkler
545 Industrial Dr
Directions Print
545 Industrial Dr $450/Monthly
$450/Monthly
Hide
Favourite

545 Industrial Dr
Winkler, Manitoba R6W1A4

MLS® Number: 674e081acf4b4412e4180ee6

Listing Description

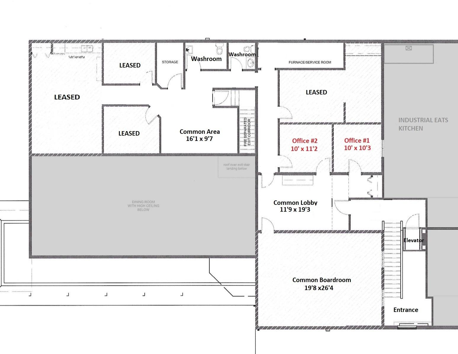
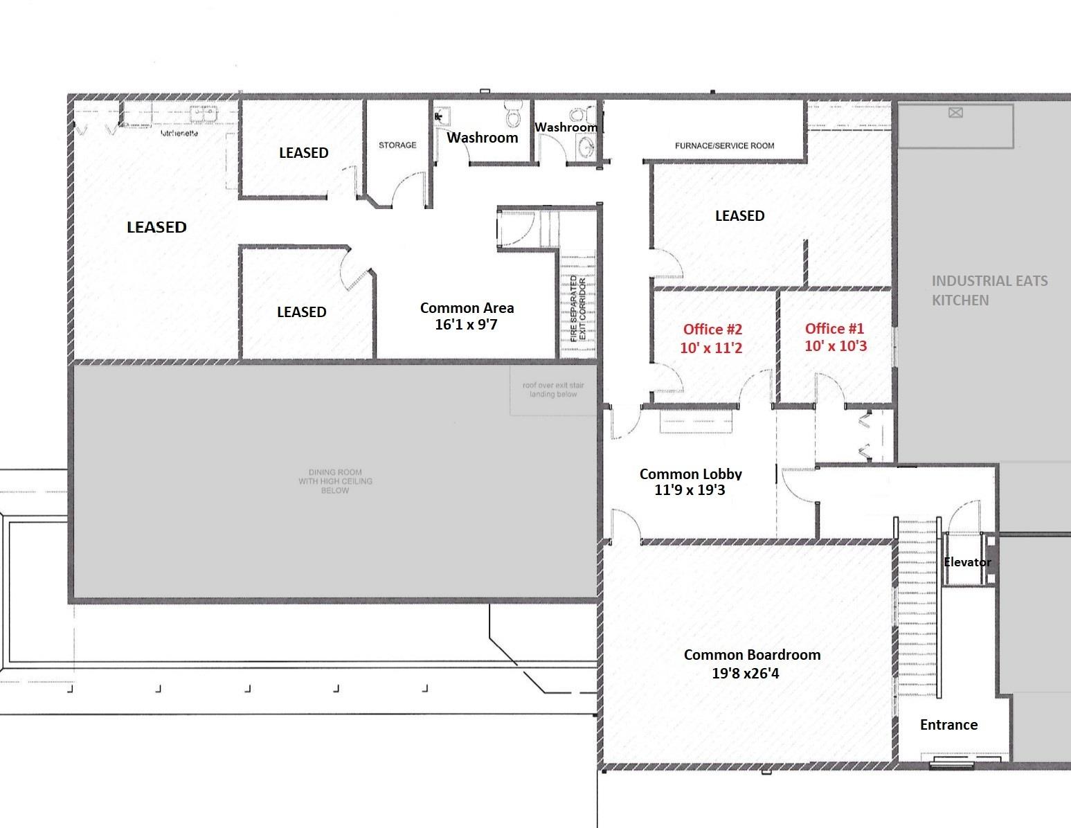
Individual 2nd floor offices for lease, located next door to Industrial Eats and The Bunker! Currently 2 offices available for immediate possession. Leases are on a month-to-month basis, and price includes utilities, wi-fi, cleaning of common areas, access to common boardroom, lobby, washrooms, and use of the common elevator. Ample parking available in the shared concrete parking lot. These offices are a great option for small businesses and professionals, contact your Realtor for a tour! (6740814468943853)

Property Summary

Property Type
Office
Land Size
1.0329 ac
Time on REALTOR.ca
379 days

Building

Building Features
Construction Status
Complete
Total Buildings
1
Exterior Features
Exterior Finish
Unknown
Business
Business Name
Offices Available For Lease

Measurements

Square Footage
280 sqft
Exterior Building Size
280 sqft

Land

Other Property Information
Zoning Description
i
Lease Type
Unknown
Are you interested in touring this listing?
Request a showing

Dave Kasdorf