We use cookies and other technologies for functionality, security, and to provide you with a personalized experience on our online services. By continuing to use our online services, you agree to our Privacy Policy and Terms of Use. For information on how to adjust your privacy settings, visit our Cookie Policy.
Dismiss
Home MB Division No. 3 Morden
118 Stephen Street
Directions Print
118 Stephen Street $16/Yearly/square feet
$16/Yearly/square feet
Hide
Favourite

118 Stephen Street
Morden, Manitoba R6M1T3

MLS® Number: 672d1af3c350305a7897de38

Listing Description

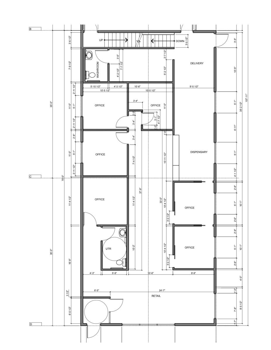
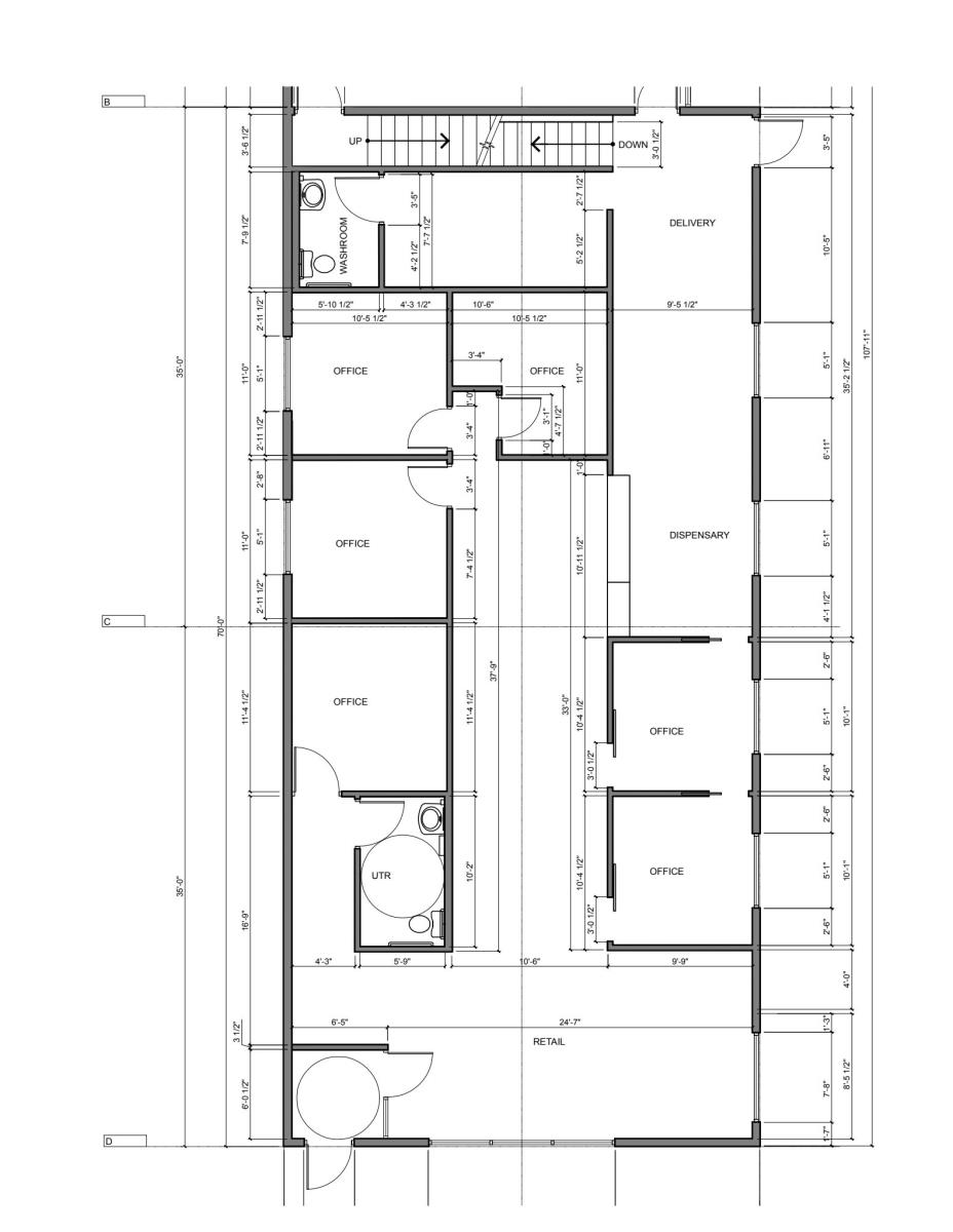
Fully finished commercial space, ideal for professional services, office or retail. Features high quality finishes, an appealing storefront, and a great downtown location! The current floorplan consists of a front retail/reception area, 6 offices, 2-2pc washrooms and storage area. The existing built-in cabinets and shelving are available to be included in the lease. Contact your Realtor to discuss this great move-in ready opportunity for your business! Estimated CAM: $5.87/sq ft – includes property taxes, building insurance, water and management. (67213350333418745)

Property Summary

Property Type
Office
Land Size
0.1582 ac
Built in
2018
Time on REALTOR.ca
404 days

Building

Building Features
Construction Status
Complete
Total Buildings
1
Exterior Features
Exterior Finish
Unknown
Business
Business Name
Office Space For Lease

Measurements

Square Footage
2240 sqft
Exterior Building Size
2240 sqft

Land

Other Property Information
Zoning Description
CC
Lease Type
Net or Percentage
Are you interested in touring this listing?
Request a showing

Dave Kasdorf