We use cookies and other technologies for functionality, security, and to provide you with a personalized experience on our online services. By continuing to use our online services, you agree to our Privacy Policy and Terms of Use. For information on how to adjust your privacy settings, visit our Cookie Policy.
Dismiss
Home QC Greater Montreal Montréal Rivière-des-Prairies-Pointe-aux-Trembles Rivière-des-Prairies Rivière-des-Prairies Industrial
9275 Boul. Henri-Bourassa E. #2
Directions Print
9275 Boul. Henri-Bourassa E. #2 + GST + QST $12.50/Yearly/square feet
+ GST + QST $12/Yearly/square feet
Hide
Favourite

9275 Boul. Henri-Bourassa E.
#2
Montréal (Rivière-des-Prairies/Pointe-aux-Trembles), Quebec H1E1P4

MLS® Number: 20982394

Listing Description

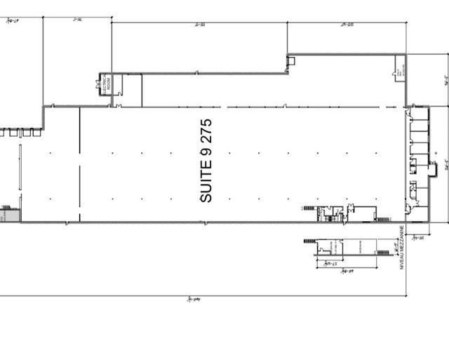
NET RENT: 75 792 Sqft of warehouse space available. 6 loading docks, racking available, outdoor storage, 20 feet ceilings GST/QST must be added to the asking price (48390701)

Property Summary

Property Type
Industrial
Building Type
Other
Neighbourhood Name
Rivière-des-Prairies
Built in
1995
Time on REALTOR.ca
464 days

Building

Building Features
Style
Detached
Total Units
1

Land

Other Property Information
Zoning Type
Industrial
Farm Features
Farm Type
Other
Are you interested in touring this listing?
Request a showing

Gregory Depatie