We use cookies and other technologies for functionality, security, and to provide you with a personalized experience on our online services. By continuing to use our online services, you agree to our Privacy Policy and Terms of Use. For information on how to adjust your privacy settings, visit our Cookie Policy.
Dismiss
Home BC Greater Nanaimo Nanaimo Northfield
2 1950/1960 Island Diesel Way
Directions Print
2 1950/1960 Island Diesel Way $23/square feet
$23/square feet
Hide
Favourite

2 1950/1960 Island Diesel Way
Nanaimo, British Columbia V9S5W8

MLS® Number: 952333

Listing Description

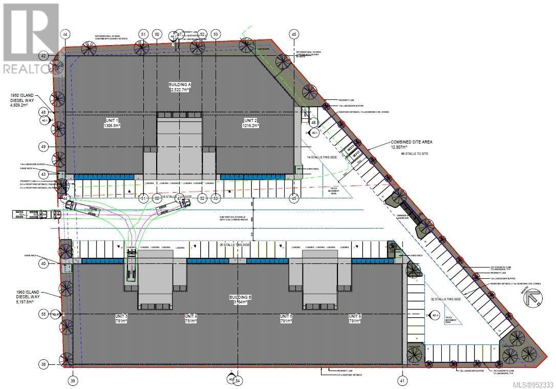
Now pre-leasing industrial warehouse space in the Boxwood Industrial Park. Up to +/- 64,660 square feet available in two buildings with various unit sizes available. Building A offers two units: Unit 1 - 14,400 SF & Unit 2 - 14,100 SF. Building B offers four units: Unit 3 - 8,950 SF, Unit 4-9,075 SF, Unit 5 - 9,075 SF, Unit 6 - 9,060 SF. Each unit will feature storefront and dedicated parking at front of building with both grade level and dock height loading bays. This is a central location in Nanaimo and in immediate proximity to a variety of amenities including Country Grocer, Nanaimo Regional General Hospital, Rexall Drug Store, TD Canada Trust and many more. Contact listing agents for further detail (27418850)

Property Summary

Property Type
Industrial
Neighbourhood Name
Central Nanaimo
Title
Freehold
Land Size
3.16 ac
Total Parking Spaces
16
Time on REALTOR.ca
689 days

Building

Building Features
Features
Central location, Other
Parking
Total Parking Spaces
16

Land

Other Property Information
Access
Road access
Zoning Description
I3
Zoning Type
Unknown
Are you interested in touring this listing?
Request a showing

Brad Archibald