We use cookies and other technologies for functionality, security, and to provide you with a personalized experience on our online services. By continuing to use our online services, you agree to our Privacy Policy and Terms of Use. For information on how to adjust your privacy settings, visit our Cookie Policy.
Dismiss
Home MB Division No. 3 Morden
25A Thornhill Street
Directions Print
25A Thornhill Street $18/Yearly/square feet
$18/Yearly/square feet
Hide
Favourite

25A Thornhill Street
Morden, Manitoba R6M1P3

MLS® Number: 62bdd85f9867f200068b9815

Listing Description

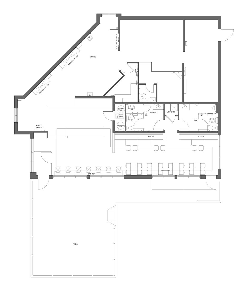
Great high-traffic location for a quick serve restaurant with drive-thru, next to the Morden Esso Station! Features an asphalt parking lot, drive-thru lane with 2 automatic windows, concrete dining patio, vestibule entrance, front counter & customer dining area with seating capacity of approximately 55. The building is equipped with natural gas and has two built-in commercial range hoods. Estimated CAM: $5.81/ sq ft – Includes pro-share of property taxes & insurance (approx. 36%). Tenant responsible for HVAC, plumbing, electrical, landscaping & snow removal. Landlord to maintain structure. (628598672027056577)

Property Summary

Property Type
Retail
Land Size
0.001 ac
Built in
2005
Time on REALTOR.ca
727 days

Building

Building Features
Construction Status
Complete
Total Buildings
1
Utilities
Utility Sewer
Sanitary sewer
Business
Business Name
Restaurant Space For Lease

Measurements

Square Footage
2348 sqft
Exterior Building Size
2348 sqft

Land

Other Property Information
Zoning Description
CHR
Lease Type
Net or Percentage
Are you interested in touring this listing?
Request a showing

Dave Kasdorf