We use cookies and other technologies for functionality, security, and to provide you with a personalized experience on our online services. By continuing to use our online services, you agree to our Privacy Policy and Terms of Use. For information on how to adjust your privacy settings, visit our Cookie Policy.
Dismiss
Home MB Greater Winnipeg Division No. 11 Winnipeg Portage-Ellice
259 Portage Ave
Directions Print
259 Portage Ave $10.75/Yearly/square feet
$11/Yearly/square feet
Hide
Favourite

259 Portage Ave
Winnipeg, Manitoba R3B2A8

MLS® Number: 63a21fe7f39f670007898c42

Listing Description

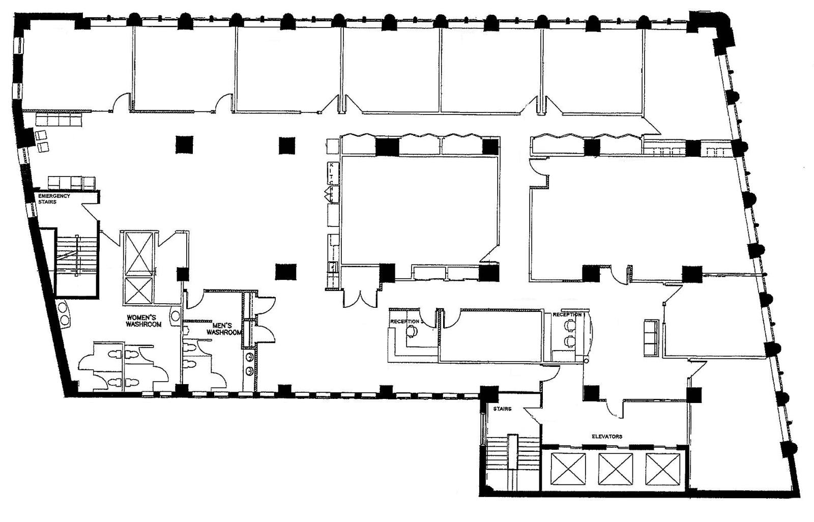
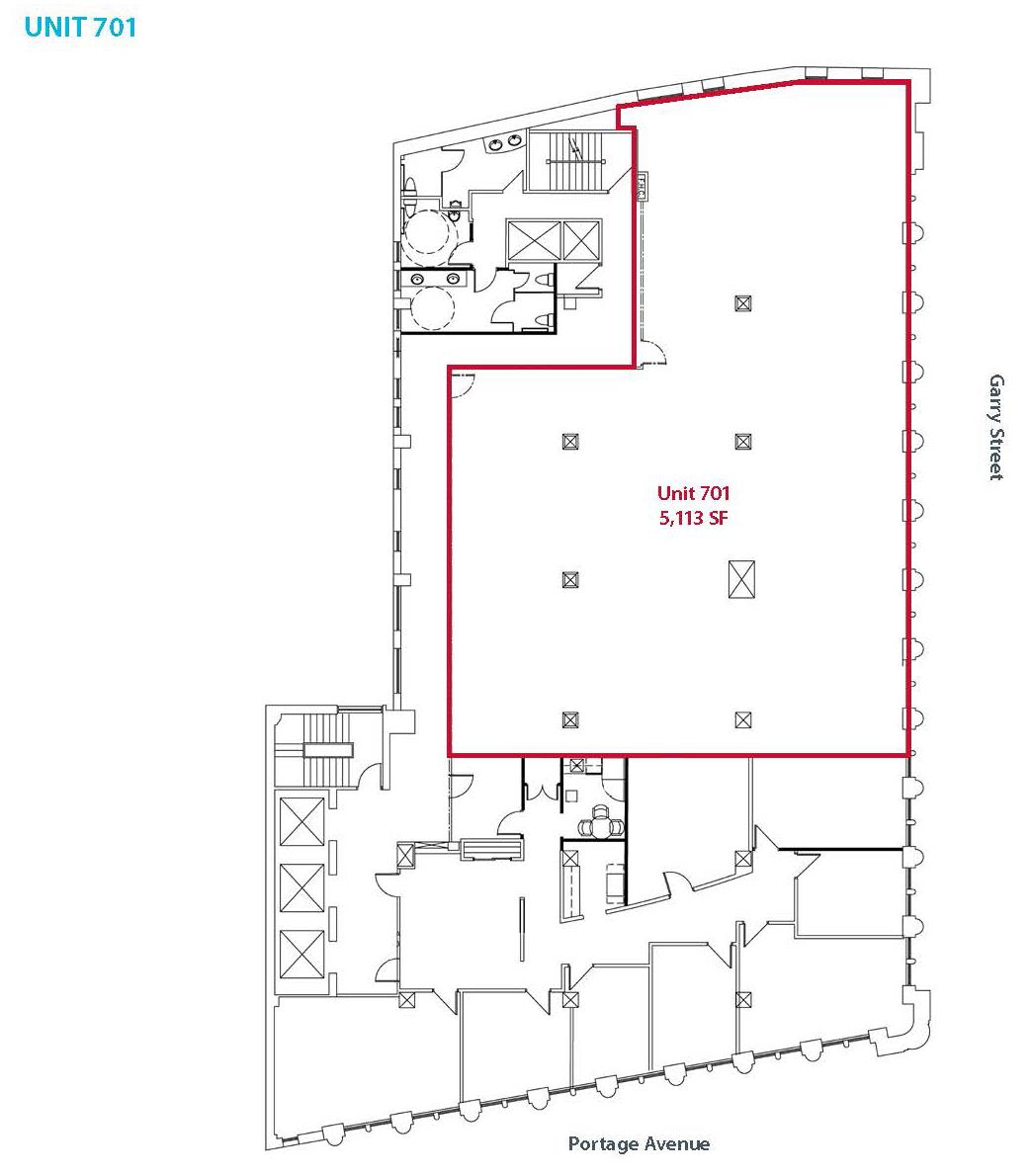
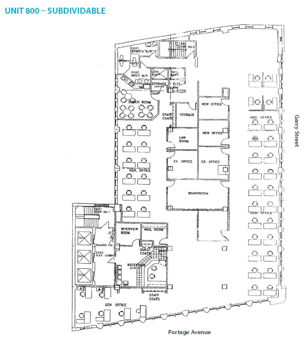
- Access to high capacity, high quality fibre-optic network - State-of-the-art conference centre facility - Individual zone controls for heating and cooling - Full floor opportunity available - Lower level storage available, up to 4,000 sf - Both open concept and extensive build out options available - Move-in ready - Floor plans attached (632173967027127076)

Property Summary

Property Type
Other
Storeys
2
Land Size
0.27 ac
Built in
1915
Time on REALTOR.ca
742 days

Building

Building Features
Construction Status
Complete
Total Buildings
1
Utilities
Utility Sewer
Sanitary sewer
Business
Business Name
Office For Lease

Measurements

Square Footage
2486 sqft
Exterior Building Size
124102 sqft

Land

Other Property Information
Zoning Description
M-MULTIPLE USE
Lease Type
Net or Percentage
Are you interested in touring this listing?
Request a showing

431-278-9443
204-594-9408
204-560-1500
204-594-9408
Steven Luk Pat