We use cookies and other technologies for functionality, security, and to provide you with a personalized experience on our online services. By continuing to use our online services, you agree to our Privacy Policy and Terms of Use. For information on how to adjust your privacy settings, visit our Cookie Policy.
Dismiss
Home AB Greater Medicine Hat Division No. 1 Medicine Hat Southlands
2030 Strachan Road SE
Directions Print
More Photos + 1
2030 Strachan Road SE $25/Yearly/square feet
$25/Yearly/square feet
Hide
Favourite

2030 Strachan Road SE
Medicine Hat, Alberta T1B3M6

MLS® Number: A2072607

Listing Description

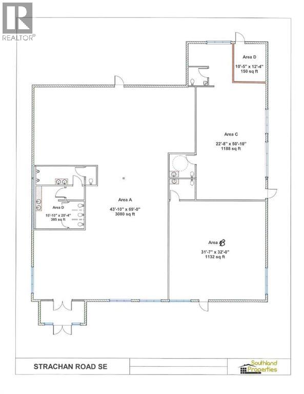
Great location in Southlands close to shopping, highway, and other mixed use properties. Building has easy access and plenty of dedicated parking. Property is being divded into 3 separate units, each with washroom facilities. See photos for floorplan details. Area A is available for lease at $30/sq ft and is 3,080 sq ft plus 2 washrooms. Area B is available for lease at $29/sq ft and is 1,132 sq ft. Area C is available to lease for $25/sq ft and are a total of 1,188 sq ft. Call your favourite realtor for more information or to set up a tour! (28015755)

Property Summary

Property Type
Business
Community Name
Southland
Subdivision Name
Southland
Title
Condominium/Strata
Land Size
Unknown
Built in
2010
Annual Property Taxes
$31,953
Time on REALTOR.ca
859 days

Building

Utilities
Utility Type
Electricity (Connected), Natural Gas (Connected), Sewer (Available), Water (At Lot Line)
Utility Sewer
Municipal sewage system
Water
Municipal water

Measurements

Square Footage
5507 sqft
Total Finished Area
5507 sqft
Exterior Building Size
5507 sqft

Land

Other Property Information
Zoning Description
commercial
Lease Type
Other, See Remarks
Data provided by: Pillar 9™
Are you interested in touring this listing?
Request a showing

GARRY RUFF