We use cookies and other technologies for functionality, security, and to provide you with a personalized experience on our online services. By continuing to use our online services, you agree to our Privacy Policy and Terms of Use. For information on how to adjust your privacy settings, visit our Cookie Policy.
Dismiss
Home MB Division No. 3 Morden
A 25 Thornhill Street
Directions Print
A 25 Thornhill Street $18 $18/square feet
$18 $18/square feet
Hide
Favourite

A 25 Thornhill Street
Morden, Manitoba R6M1P3

MLS® Number: 202212037
0
Bathrooms
-
Square Feet

Listing Description

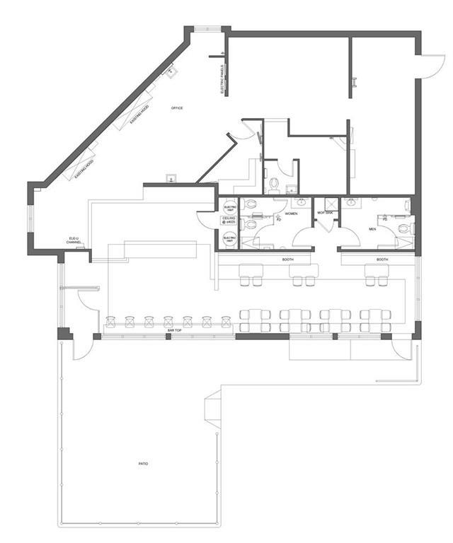
R35//Morden/Great high-traffic location for a quick serve restaurant with drive-thru, next to the Morden Esso Station! Features an asphalt parking lot, drive-thru lane with 2 automatic windows, concrete dining patio, vestibule entrance, front counter & customer dining area with seating capacity of approximately 55. The building is equipped with natural gas and has two built-in commercial range hoods. Estimated CAM is $5.81/sq ft - Includes pro-share of property taxes & insurance (approx. 36%). Tenant responsible for HVAC, plumbing, electrical, landscaping & snow removal. Landlord to maintain structure. (226683383)

Property Summary

Property Type
Retail
Building Type
Retail
Community Name
R35
Neighbourhood Name
R35
Title
Leasehold
Land Size
Unknown
Built in
2005
Time on REALTOR.ca
1294 days

Building

Bathrooms
Total
0
Heating & Cooling
Heating Type
Forced air

Land

Other Property Information
Lease Type
Net
Are you interested in touring this listing?
Request a showing

Dave Kasdorf