We use cookies and other technologies for functionality, security, and to provide you with a personalized experience on our online services. By continuing to use our online services, you agree to our Privacy Policy and Terms of Use. For information on how to adjust your privacy settings, visit our Cookie Policy.
Dismiss
Home ON Greater Windsor Essex County Amherstburg
83 SANDWICH
Directions Print
83 SANDWICH $30/square feet
$30/square feet
Hide
Favourite

83 SANDWICH
Amherstburg, Ontario N9V1Z5

MLS® Number: 1003319

Listing Description

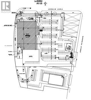
SOBEY'S RETAIL CENTRE HAS AN OPPORTUNITY FOR MULTIPLE SIZED NEW PADS, TO BE BUILT. NEW BUILDS FROM 1000 SQ FT TO 9,000 SQ FT. DOWNTOWN AMHERSTBURG LOCATION, ACROSS FROM HIGH SCHOOL. (12692964)

Property Summary

Property Type
Industrial
Land Size
75000 SQ FT
Time on REALTOR.ca
5023 days

Building

Heating & Cooling
Cooling
Air Conditioned
Heating Type
Forced air, Heat Recovery Ventilation (HRV)
Utilities
Water
Municipal water

Measurements

Square Footage
9000 sqft
Total Finished Area
9000 sqft

Land

Other Property Information
Zoning Description
CD1
Are you interested in touring this listing?
Request a showing

519-566-3744
519-972-7848
JOSEPH MIKHAIL