We use cookies and other technologies for functionality, security, and to provide you with a personalized experience on our online services. By continuing to use our online services, you agree to our Privacy Policy and Terms of Use. For information on how to adjust your privacy settings, visit our Cookie Policy.
Dismiss
Home ON Greater Toronto Area Halton Region Oakville Glen Abbey
12 - 1520 REEVES GATE
Directions Print
12 - 1520 REEVES GATE $780,000
$780,000
Hide
Favourite

12 - 1520 REEVES GATE
Oakville (GA Glen Abbey), Ontario L6M3J4

MLS® Number: W12491926
3
Bedrooms
3
Bathrooms
1200 - 1399
Square Feet

Listing Description

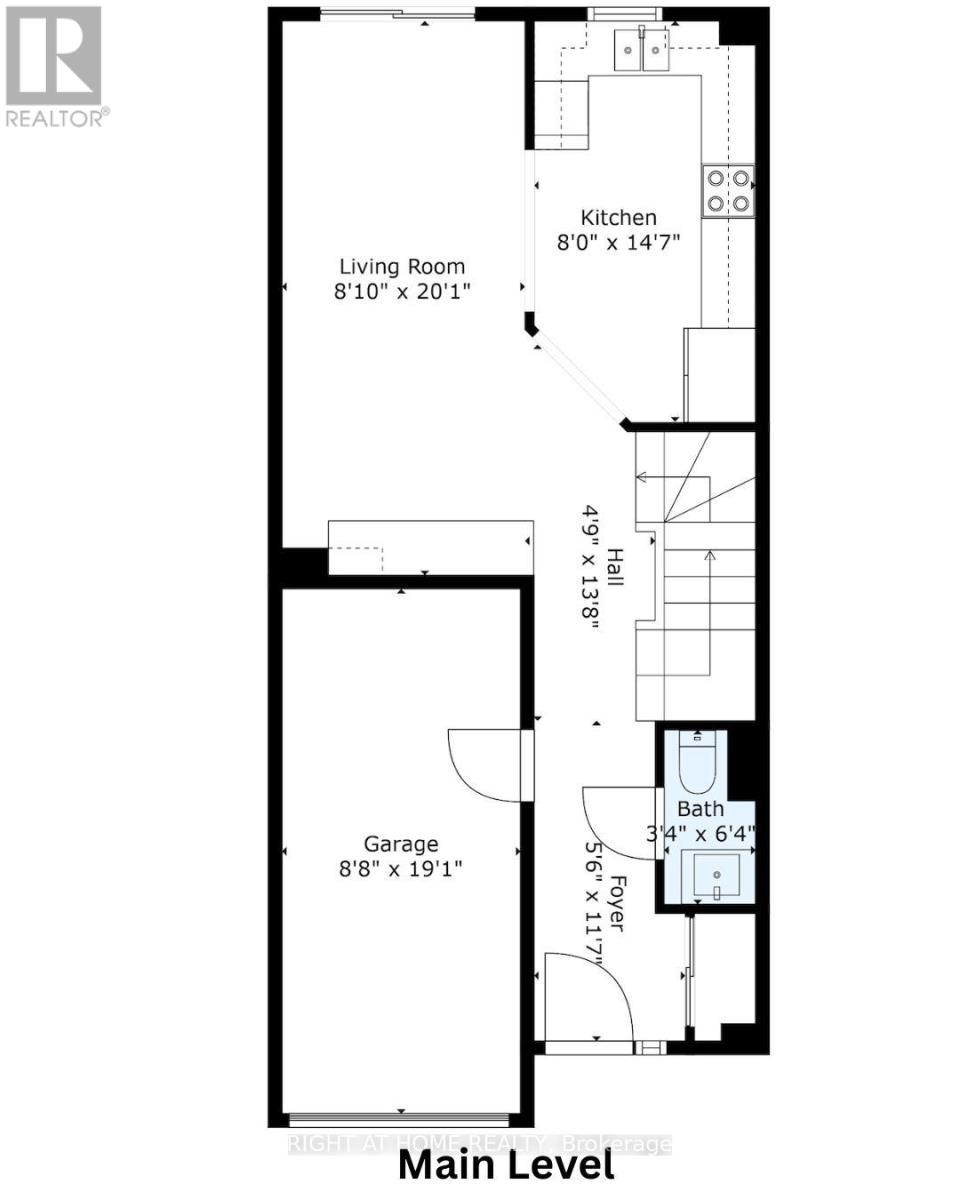
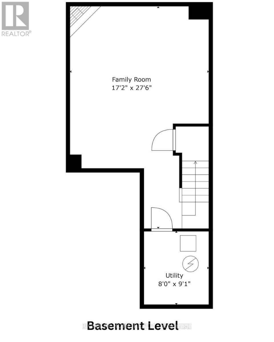
Welcome to this beautifully maintained 3-bedroom, 3-bathroom condo townhouse in the highly sought-after Glen Abbey neighbourhood! This unit offers the convenience of inside access to the garage, making everyday living seamless. The open-concept main floor features a kitchen with quartz countertops and backsplash and stainless steel appliances, overlooking the bright living and dining area with a walkout to the backyard perfect for relaxing outdoors. Upstairs, you'll find a large primary bedroom with a walk-in closet, a 4 piece double sink updated ensuite bathroom along with two additional goody sized bedrooms and an updated main bathroom. The finished basement includes a spacious family room with a cozy fireplace, ideal for movie nights or gatherings and a laundry. Located in one of Oakville's top-ranked school districts(Heritage Glen PS & Abbey Park HS), this home is perfect for families and offers easy access to parks, trails, shopping, transit, and highways. (41541027)

Location Description

Cross Streets: Upper Middle Rd/Reeves Gate. ** Directions: Upper Middle Rd then Reeves Gate.

Property Summary

Property Type
Single Family
Building Type
Row / Townhouse
Storeys
2
Square Footage
1200 - 1399 sqft
Community Name
1007 - GA Glen Abbey
Title
Condominium/Strata
Annual Property Taxes
$3,480.41
Parking Type
Attached Garage, Garage
Time on REALTOR.ca
42 days

Building

Bedrooms
Above Grade
3
Bathrooms
Total
3
Partial
1
Interior Features
Appliances Included
Garage door opener remote(s), Water meter, Dishwasher, Dryer, Garage door opener, Microwave, Range, Washer, Refrigerator
Flooring
Carpeted, Ceramic
Basement Type
Finished
Building Features
Building Amenities
Fireplace(s)
Rental Equipment
Water Heater
Heating & Cooling
Cooling
Central air conditioning
Fireplace
1
Heating Type
Forced air (Natural gas)
Exterior Features
Exterior Finish
Brick
Neighbourhood Features
Community Features
Pets Allowed With Restrictions
Maintenance or Condo Information
Maintenance Fees
$457.60 Monthly
Maintenance Fees Include
Common Area Maintenance, Parking
Maintenance Management Company
Kerr Property Management
Parking
Parking Type
Attached Garage, Garage
Total Parking Spaces
2

Measurements

Square Footage
1200 - 1399 sqft

Rooms

MetricImperial
Main level
Living room
Dining room
Kitchen
Second level
Primary Bedroom
Bedroom 2
Bedroom 3
Bathroom
Bathroom
Basement
Family room
Are you interested in touring this listing?
Request a showing

Similar Listings

JUDE RAHMOUNI